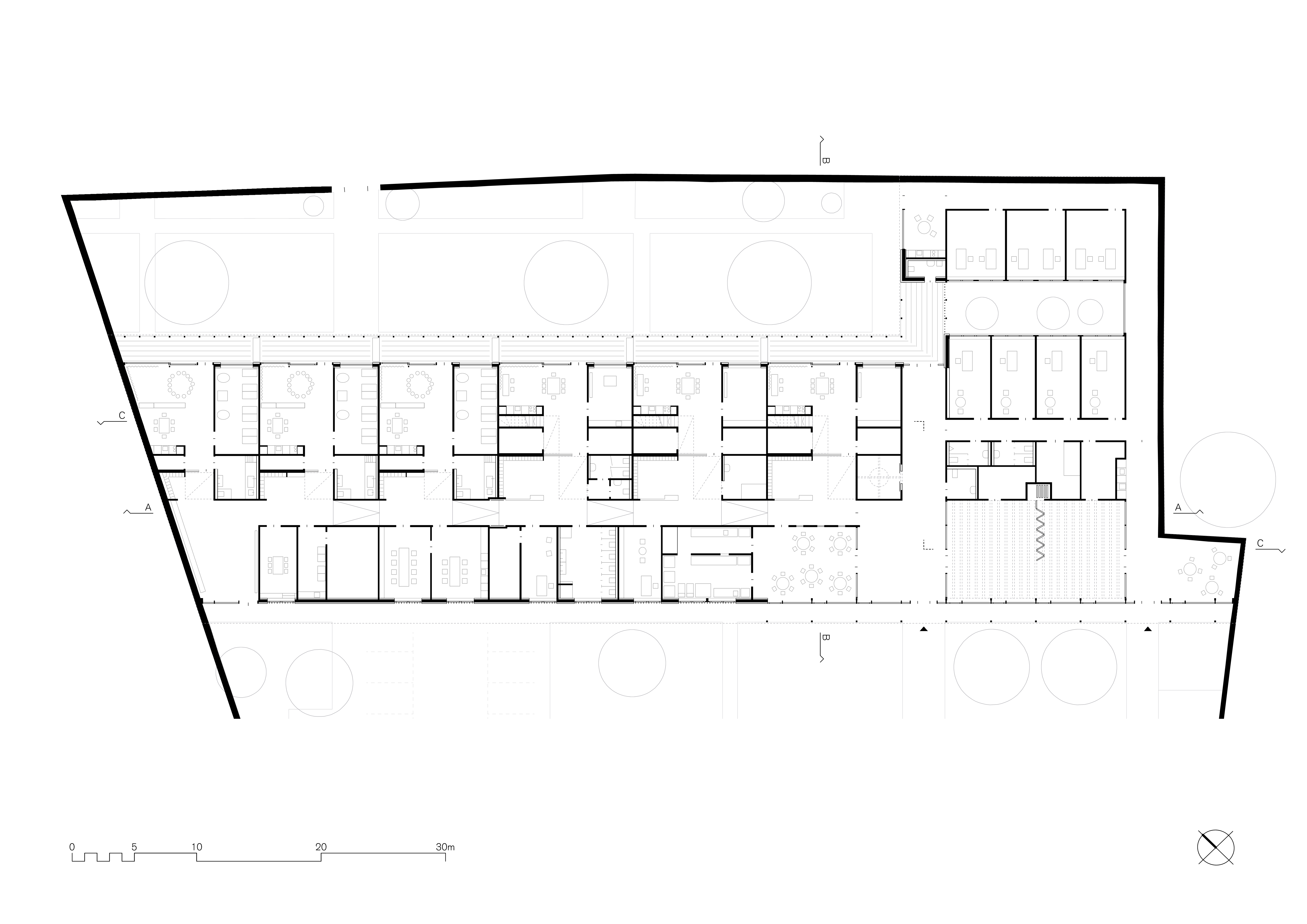
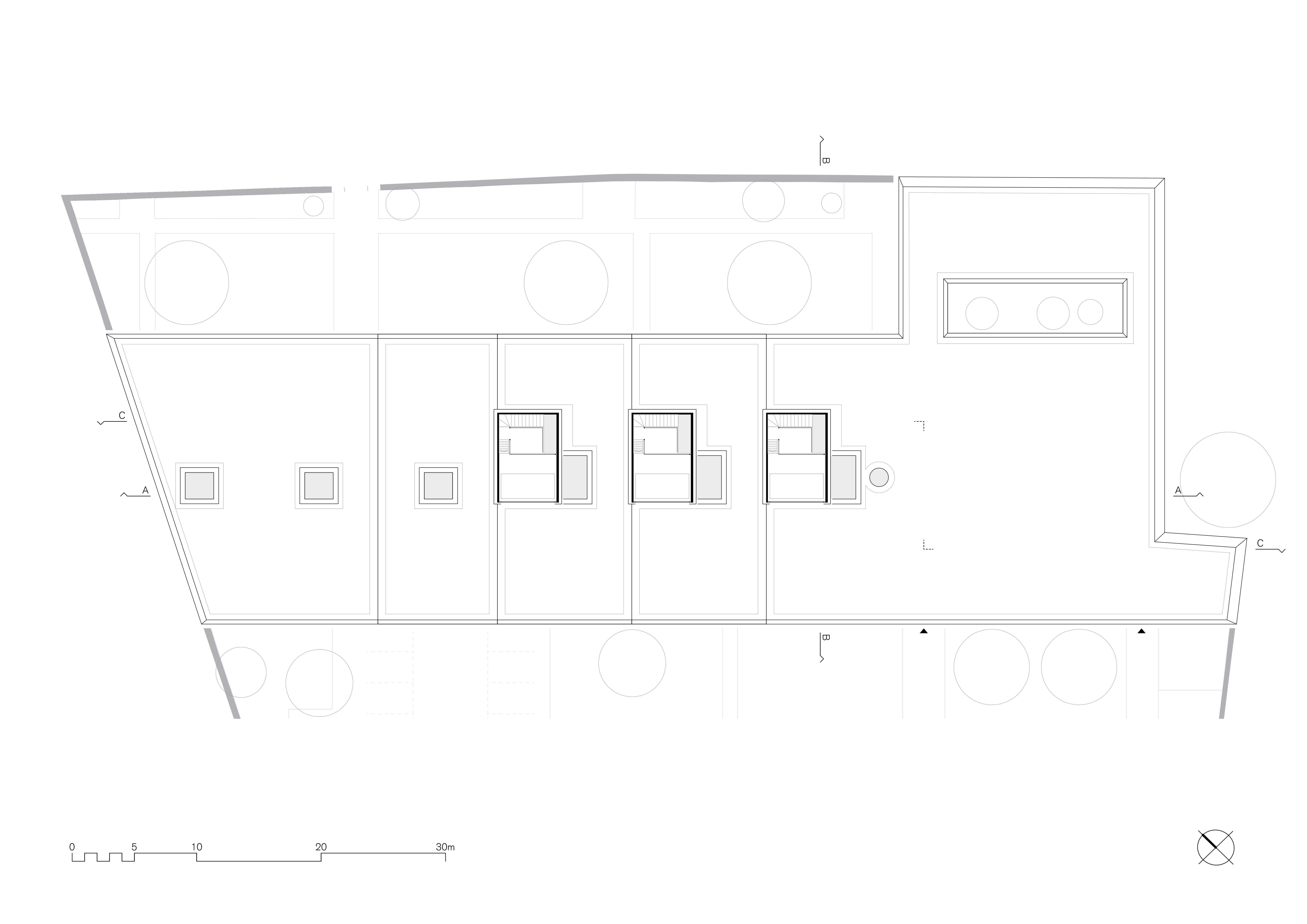
Der von mächtigen, roten Sandsteinmauern umfasste Klostergarten des ehemaligen Franziskanerklosters ist eine grüne Oase im historischen Stadtzentrum Miltenbergs. Ein Ort, der auf idealtypische Weise Zentralität und Geborgenheit in sich vereint. Gleichzeitig aber auch ein sensibler Ort mit großer Geschichte, dessen Bebauung mit einer Kindertagesstätte Behutsamkeit und Präzision erfordert. Der Neubau wurde als eingeschossiger Pavillon passgenau zwischen die Klostermauern eingespannt und teilt so den Garten in den Freispielbereich der Kita und einen öffentlich zugänglichen Freiraum, der im Sinne des ehemaligen Klostergartens gestaltet wird. Das Haus wurde als konstruktiver Holzbau mit sichtbar belassenen Oberflächen erstellt. Mit seiner sanft gestaffelten Terrassierung folgt es der Topografie des Geländes. Ihre haptischen und atmosphärischen Qualitäten machen die Kita zu einem Haus zum Anfassen. Jeder Gruppenraum verfügt über ein räumlich integriertes Kletterelement, das sich als Ausguck über die begrünte Dachfläche erhebt. Hier sind für die Kinder Rückzugsorte entstanden, die zum Träumen, Lesen, Beobachten oder Nachdenken inspirieren.
Wettbewerb 2018 / 1. Preis
Fertigstellung 2022
Bauherr Stadt Miltenberg
BGF 2.133 m²
BRI 8.334 m³
Mainstraße 19
63897 Miltenberg
Auszeichnungen
Regionaler Holzbaupreis des Bayerischen Staatsministeriums 2023
Longlist beim DAM Preis für Architektur in Deutschland 2024
Shortlist beim Heinze Architektur AWARD 2023
Lattung in Weißtanne
Klostermauer Mainsandstein
Linoleum braun-aubergine
Merinofilz grau meliert





















