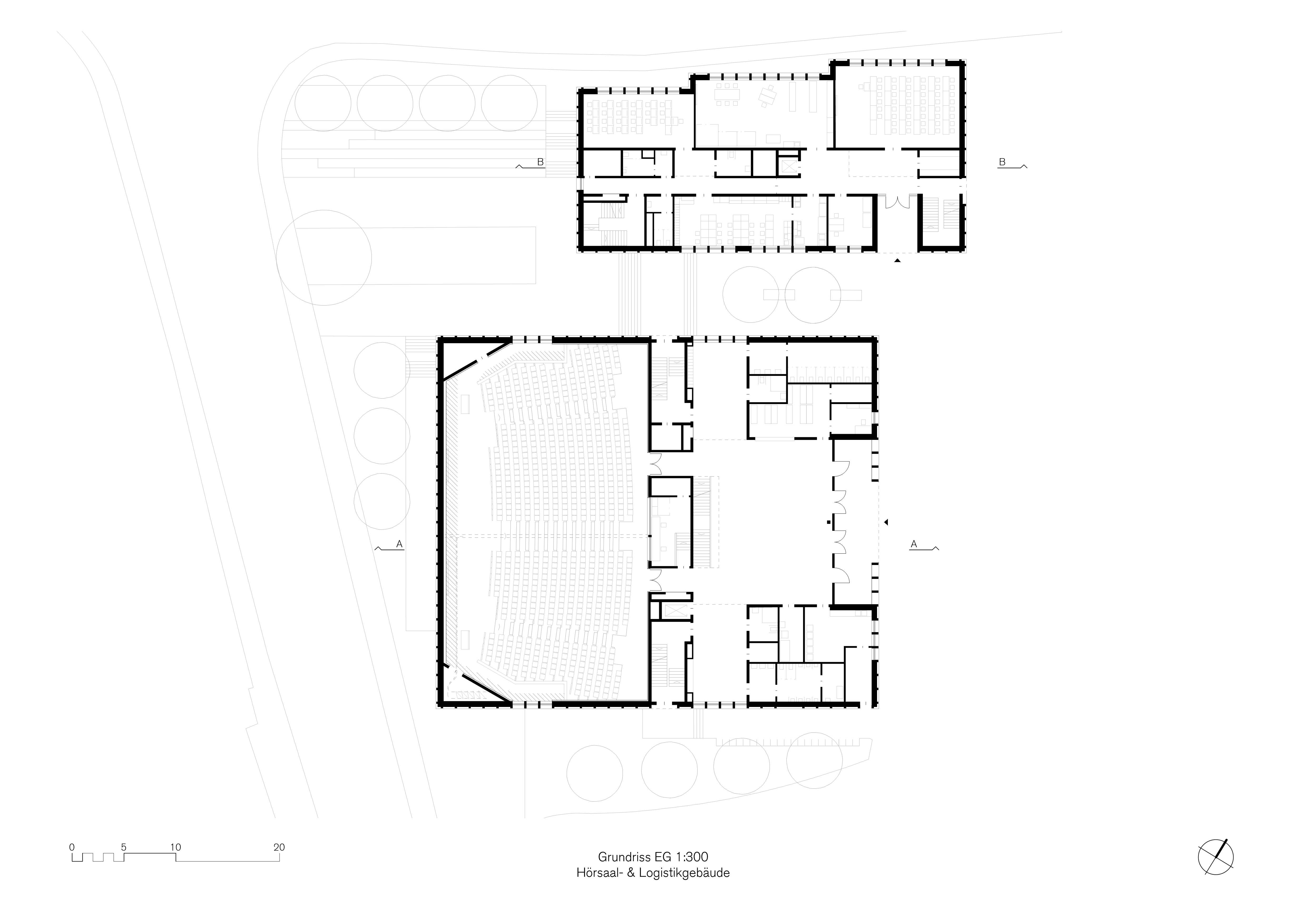
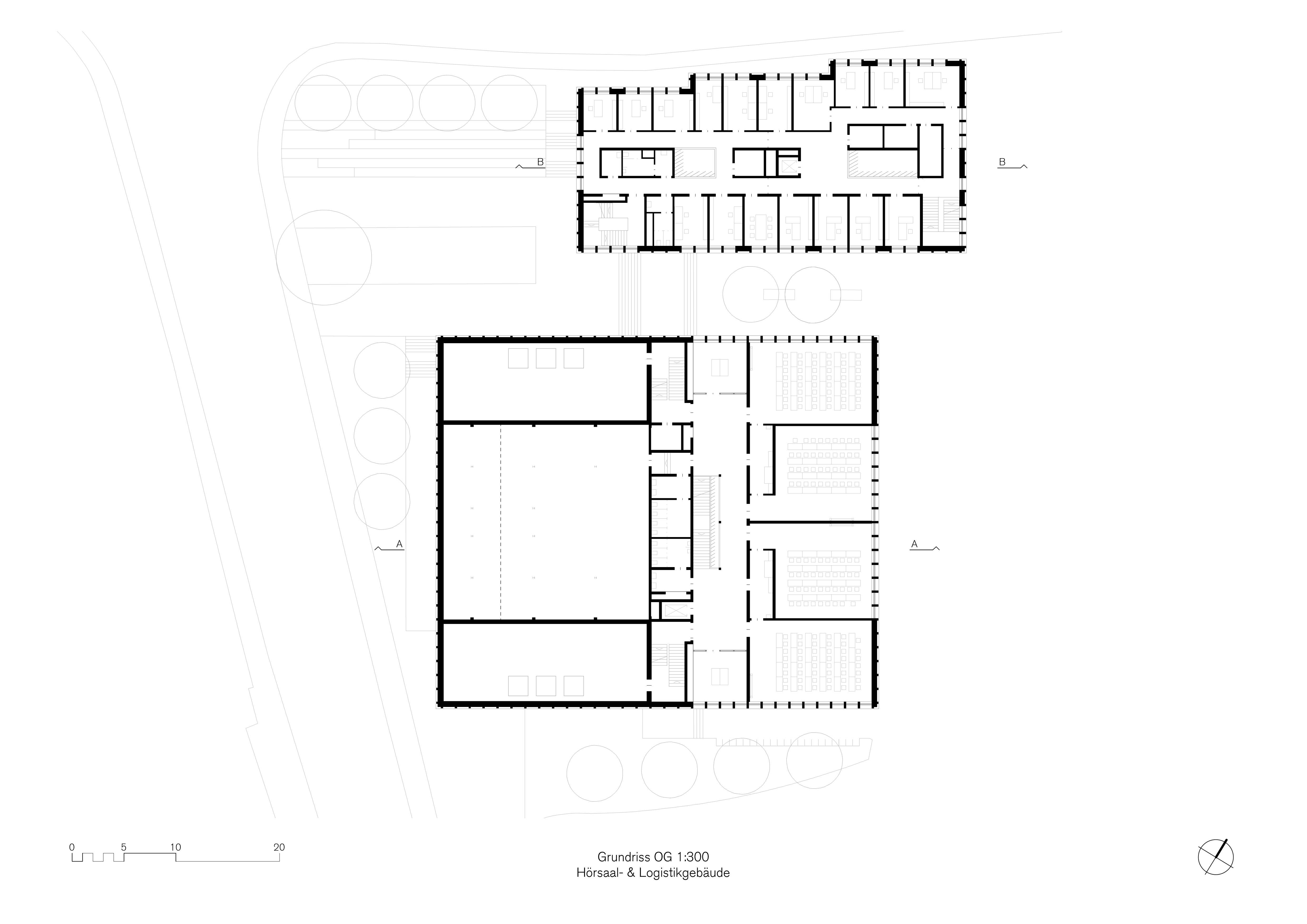
Die beiden benachbarten Häuser vervollständigen die historische Keimzelle der Getränketechnologischen Hochschule Geisenheim, die aus der 1872 gegründeten, ehemaligen Königlich Preußischen Lehranstalt für Obst- und Weinbau hervorgegangen ist. Hier werden heute die Winzer der kommenden Generation in Theorie und Praxis ausgebildet. Hörsaalgebäude und Logistiklabor formulieren gemeinsam den Zugang zum östlichen Hochschulcampus, der von einer prächtigen Zeder an der Von-Lade-Straße markiert wird. Die überdeckte Eingangssituation des Hörsaalgebäudes dient als wettergeschützte Erweiterung des Foyers an der Campuswiese. Das ansteigende Gestühl des Hörsaals mit seinen rund 700 Sitzplätzen legt sich auf die vorhandene Topographie des steil abfallenden Geländes. Ein zenital belichteter offener Treppenlauf führt hinauf zu vier Seminarräumen im Obergeschoss des Hauses.
Das Logistikgebäude folgt dem geschwungenen Verlauf der angrenzenden Falterstraße mit einer Rückstaffelung, die gleichzeitig im Inneren des Hauses ideale Raumtiefen für die unterschiedlich großen Unterrichtsräume generiert. Das Obergeschoss ist als Dreibund mit Büros zu beiden Seiten konzipiert. Die gestaffelte Kernzone wird von Lufträumen unterbrochen, die die Etagen vertikal miteinander verknüpfen. Grob gestrahlte Betonfertigteile artikulieren die Sockel und Geschossdecken der Häuser. Dazwischen spannen sich streng getaktete Holzlisenen mit einer leicht geneigten Bretterschalung, die ein feines Licht- und Schattenspiel auf die Fassaden zaubern. Auch im Inneren dominieren sichtbar belassene Holzoberflächen und brettergeschalter Ortbeton, die durch ihre Materialität und Textur den Häusern eine handwerkliche Authentizität verleihen.
Wettbewerb 2017 / 1. Preis
Fertigstellung 2025
Bauherr Land Hessen
BGF 4.695 m²
BRI 23.563 m³
Von-Lade-Straße 1
65366 Geisenheim
Ortbeton, brettergeschalt
Dreischichtplatte Lärche
Betonwerkstein mit Natursteinzuschlag
Buchesperrholz, grün gebeizt






















