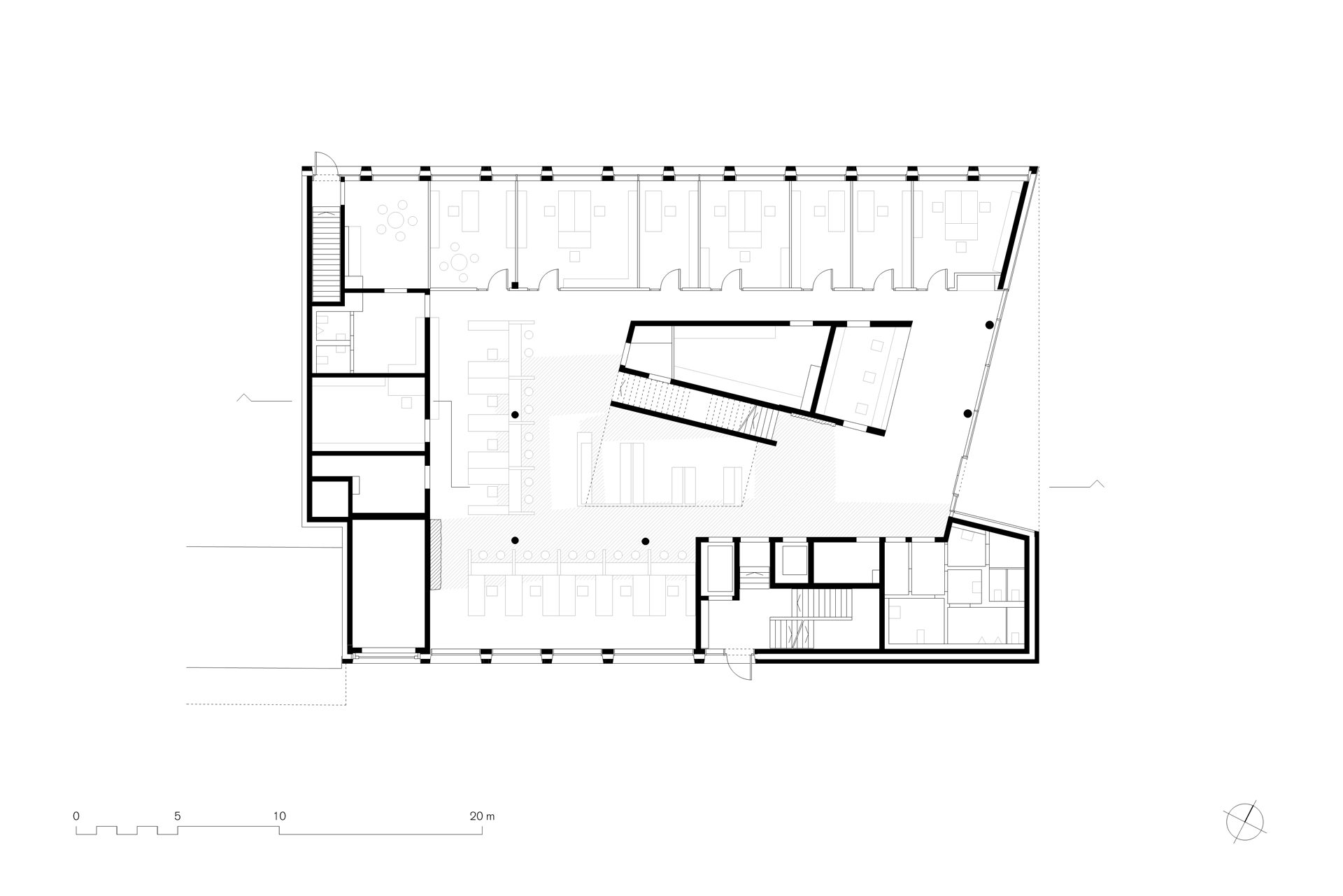
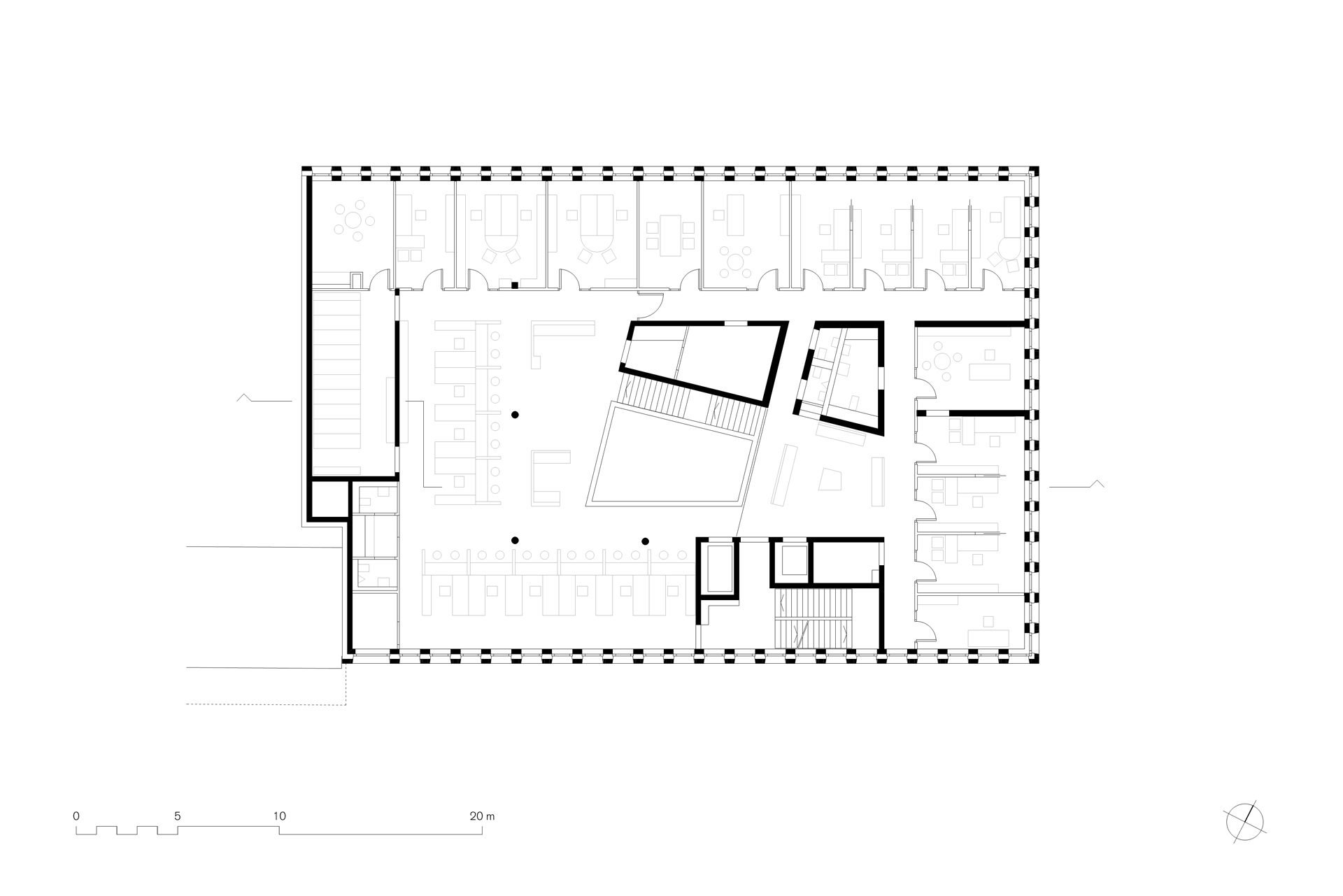
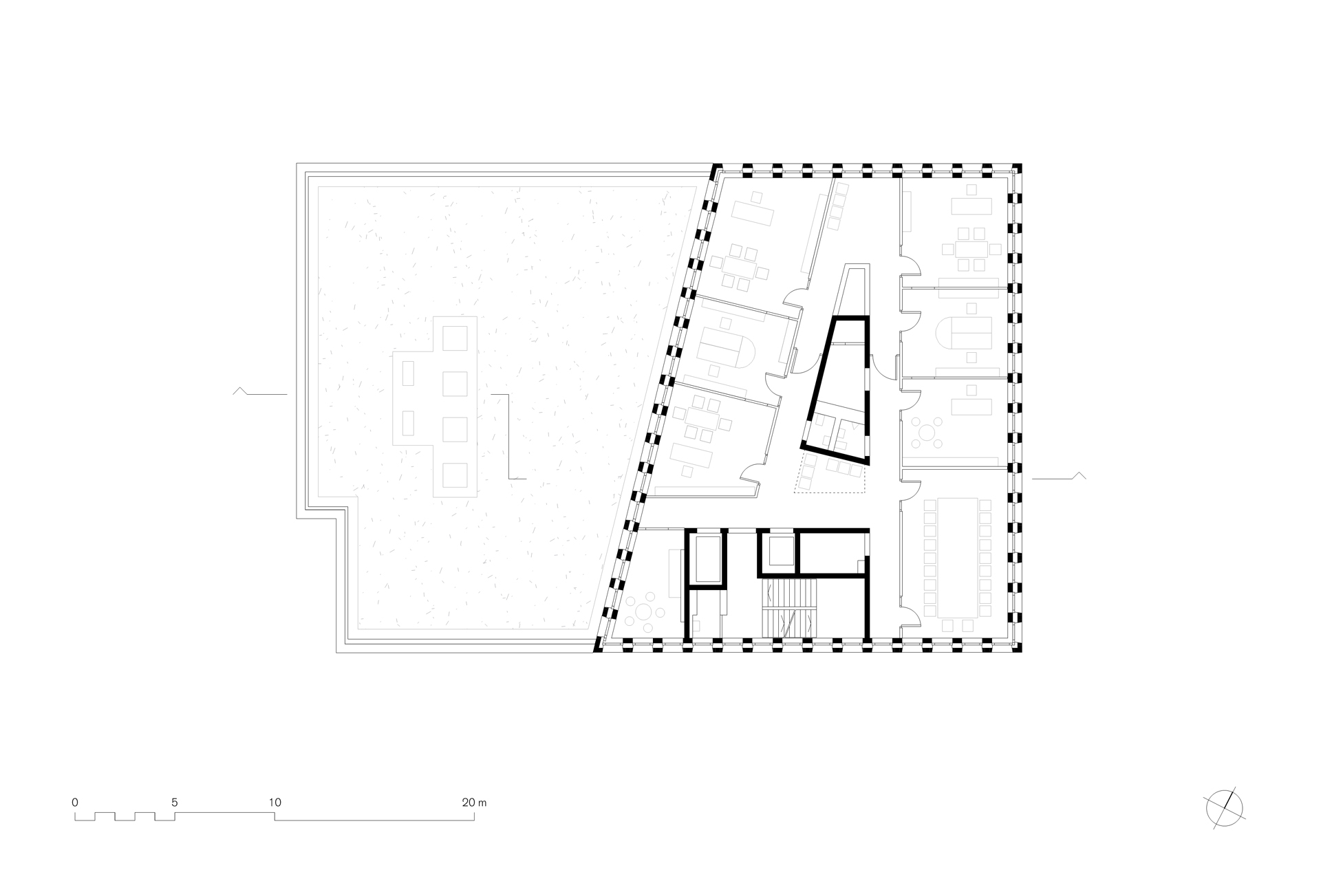
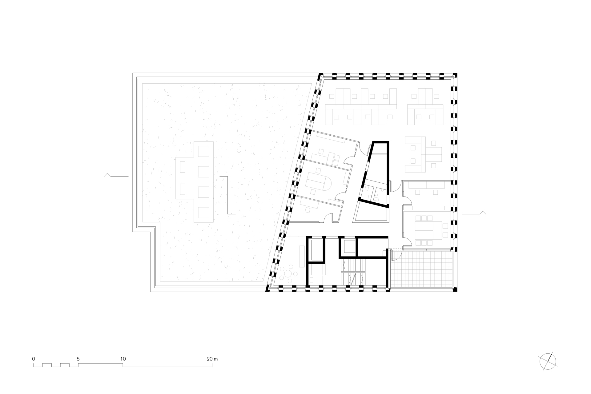
Der Neubau für die Bürgerdienste der Stadt Ulm verbindet den Wunsch nach städtebaulicher Integration mit einer angemessenen gestalterischen Eigenständigkeit für das zweite Rathaus Ulms. Über dem zweigeschossigen Sockel erhebt sich ein fünfgeschossiger Verwaltungsturm, dessen schlanke Proportion durch seine volumetrische Abschrägung entsteht. Im Gebäudesockel befinden sich die stark frequentierten Servicebereiche, beide Geschosse werden deshalb über ein zenital belichtetes Atrium und einen offenen Treppenlauf zu einer identitätsstiftenden Hausmitte verknüpft. Die fein austarierte Balance von Transparenz und Massivität transportiert das Leitbild einer modernen und offenen Verwaltung und verfügt gleichzeitig über die notwendige stadträumliche Kraft in einem nicht ganz einfachen Umfeld unweit des Hauptbahnhofs. Die als Ortbetonkonstruktion geplante Fassade wurde von einem Steinmetz in handwerklicher Arbeit vollflächig gestockt, die Kanten der Fensteröffnungen wurden scharriert. Dadurch wurde das dem Beton beigemischte, beigefarbene Juragestein (Ulmer Weiß) an der Betonoberfläche freigelegt.
Wettbewerb 2013 / 1. Preis
Fertigstellung 2019
Bauherr Stadt Ulm
BGF 5.559 m²
BRI 20.750 m³
Olgastraße 66
89073 Ulm
Auszeichnungen
Beispielhaftes Bauen - Alb-Donau-Kreis und Ulm 2019
Shortlist Heinze Architekten Award 2019
Transluzenter Vorhang
Roter Filz
Streckmetall eloxiert
Gestockter Ortbeton mit Juragestein

















